Ruumfabrigg_Architekten_GmbH_ETH_SIA_BER0.jpg

Wohnungsbau Reinen Berikon

 
 

Wohnungsbau Reinen

Berikon AG
Direktauftrag 2017
Umsetzung ab 2019 durch andere Architekten

 
Schnitt

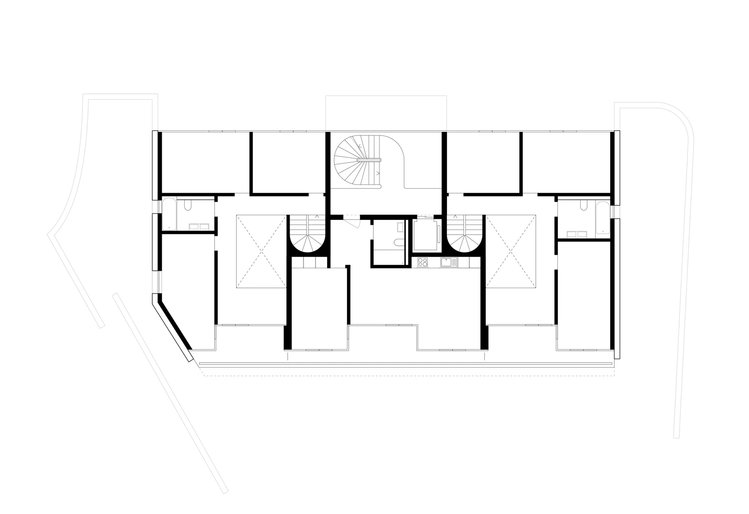
Schnitt

 

Das Gebäude nutzt die gesetzlichen Maximalmasse von 12,5 x 25 Meter aus und maximiert die (nicht anrechenbare) Fläche in den beiden Dachgeschossen. Um die Ausnützungsziffer in den Regelgeschossen nicht zu überschreiten wird überschüssige (anrechenbare) Geschossfläche mittels Ausschnitten in den Deckenplatten und Aussenflächen vernichtet. Der dadurch entstehende Hohlraum ermöglicht es das Zentrum des Erdgeschosses von oben zu belichten. Dieses clevere Ausnützungskonzept erlaubt es eine Wohnung mehr als von der Bauherrschaft ursprünglich gefordert, unterzubringen.

 
Diagramm
 

Vier Maisonettewohnungen, jeweils an den Stirnseiten und drei 2,5-Zimmerwohnungen in der Mitte der Geschosse bilden den Wohnungsspiegel. Das Herzstück aller Maisonettes ist ein hoher Raum im Zentrum der Wohnungen. In den Parterrewohnungen wird dieser über die Loggia im 1. Obergeschoss belichtet, in den Dachwohnungen über grosse Dachflächenfenster.

konzeptmodell-farbig.jpg

Die zwei Giebelwände bilden gemeinsam mit den sie umgebenden Mauern einen kleinen Hof. Auf der Nordseite schafft diese Vorzone die Distanz zur Kreuzung der beiden Zufahrtsstrassen, im Süden zum Nachbarhaus und der Tiefgarageneinfahrt. Diese beiden „Skulpturen“ spannen das Mehrfamilienhaus Reinen auf. Ostfassade, Westfassade und Dach sind flächig dazwischengelegt. 

 
 
 
 
 
 
 
 
© 2023, by RUUMFABRIGG. all rights reserved